
Stadtplanung
Mit Leidenschaft für Stadt und Architektur engagieren wir uns dafür, Städte, Gemeinden und Investoren durch die oft anspruchsvollen und zeitintensiven Prozesse der städtebaulichen Planungen zu begleiten. Unsere planerischen Lösungsansätze und die sorgfältige Abwägung aller Belange ermöglichen es uns, Projekte im Team ganzheitlich voranzubringen und erfolgreich abzuschließen.
Wir von der CL MAP schaffen Synergien zwischen allen Beteiligten und bringen unser Fachwissen im ständigen Dialog mit den Abteilungen aus dem Hochbau ein.

KONZEPTE UND ENTWURF

BAULEITPLANUNG
Flächennutzungspläne
Bebauungspläne
Vorhabenbezogene Bebauungspläne
Städtebauliche Satzungen
Raumordnungsverfahren

PROJEKTSTEUERUNG
Kosten- und Terminmanagement
Organisation und Koordination
Ausschreibung und Vergabe
Qualitäts- und Risikomanagement
Strategieplanung und Prozessoptimierung
Entscheidungsmanagement
Moderation


Ursprünglich war die Aufstellung eines Bebauungsplans Nr. 181 für die gesamte Fläche zwischen der Haager Straße und der Bundesstraße B388 vorgesehen.
Um aufgrund der Gesamtgröße eine realistische Entwicklung zu gewährleisten, wurde der Bebauungsplan in insgesamt vier Abschnitte unterteilt.
Ziel der Planung ist es, die innerstädtisch, in erreichbarer Nähe zur Innenstadt gelegene, brachliegende Fläche zur Deckung des Wohnbauflächenbedarfs in Kombination mit Freiflächen, Gemeinbedarfsnutzungen (Schule, Kindergärten, Spielflächen) sowie zur Schaffung wichtiger Fuß- und Radwegeverbindungen zu entwickeln.
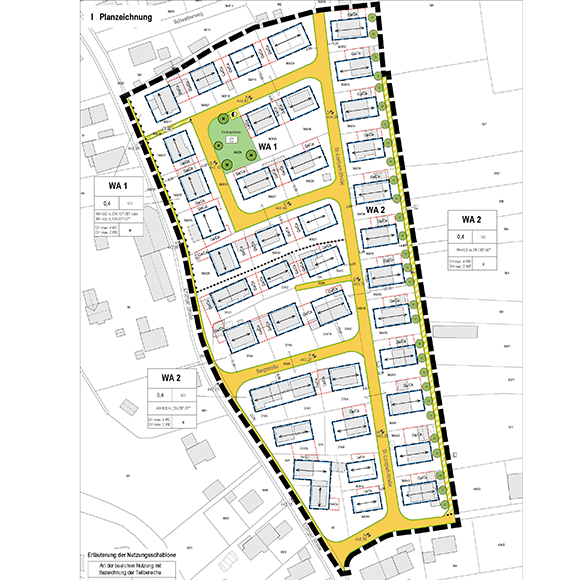
Der Bebauungsplan Nr. 181 III für das Teilgebiet Nordwest umfasst eine Fläche von 5,38 ha.

Das rund 25 Hektar große Areal zwischen Kirchtrudering und der Messestadt Riem wird aktuell als Teil einer umfassenden Stadtentwicklung neu gestaltet. In enger Zusammenarbeit plant die Eigentümergemeinschaft „P6“ gemeinsam mit der Landeshauptstadt München ein lebendiges, vielfältiges Stadtquartier.
Vorgesehen sind moderne Wohnflächen, soziale Infrastruktureinrichtungen, Gewerbenutzungen und Erschließungsmaßnahmen. Großzügige Grün- und Freiflächen bilden das Herzstück des Quartiers und schaffen Raum für Erholung und Begegnung.
Dieses Quartier strebt das DGNB Zertifikat an.

Das rund 16 Hektar große Planungsgebiet – nördlich der Jaspersallee, östlich des Dreilingsweges und westlich der Mooswiesenstraße im Münchner Nordwesten gelegen – wird derzeit vorwiegend landwirtschaftlich genutzt. Hier entsteht in gemeinsamer Planung der Landeshauptstadt München und der Bayerischen Hausbau GmbH & Co. KG ein modernes und lebenswertes Stadtquartier.
Geplant sind vorwiegend Wohnnutzungen, eine weiterführende Schule, wichtige soziale Infrastruktureinrichtungen sowie vielfältige Nahversorgungsangebote. Großzügige öffentliche Grünflächen und private Freiräume schaffen ein attraktives Wohnumfeld und sorgen für hohe Lebensqualität im neuen Quartier.
→ Projektseite der Bayerischen Hausbau

Mit der Planung soll ein noch in Teilen intaktes Ortsbild sowie der Wahrung der einzigartigen Identität des Ortsteils „Westerndorf Am Wasen“ erhalten und gestärkt werden. Es soll die historisch gewachsene dörfliche Struktur, welche auch durch die landwirtschaftlichen Betriebe und die naturräumliche Lage charakterisiert wird, erhalten bleiben. Charakteristisch für das Plangebiet sind zudem Grün- und Freiflächen, welche auch zukünftig in dieser Form geschützt werden sollen.
Es handelt sich um einen sogenannten einfachen Bebauungsplan, d. h. dieser konzentriert sich auf die wesentlichen Rahmenbedingungen, die für die Zielsetzung als entscheidend erachtet werden. Weitere für die planungsrechtliche Beurteilung erforderliche Kriterien bleiben in einer individuellen Beurteilung den Paragrafen 34 und 35 des Baugesetzbuchs überlassen.
→ Beitrag rfo Regional Fernsehen Oberbayern

Das Entwurfsgebiet wird als durchgrüntes Stadtquartier verstanden, welches den Bereich zwischen der Donau und dem Hauptbahnhof zukünftig städtebaulich miteinander verbindet. Prägendes Element des neuen quartiersübergreifenden Stadtparks wird der reaktivierte Stadtbach, der durch den Park mäandert, bis er in die Günz mündet.
Zwischen dem Auweg und einem neuen Uferweg entlang der Günz entsteht das „Wohnquartier Günz-Donaupark“. Sechs urbane durchgrünte Wohnhöfe und die attraktive Lage zur Günz geben dem neuen Stadtquartier seine Identität. Die Günz wird durch einen neuen Uferweg mit attraktiven Aufenthaltsbereichen erlebbar gemacht.

Um die Nachfrage nach geeigneten Gewerbeflächen zu decken und zugleich eine geordnete städtebauliche Entwicklung und Erschließung sicherzustellen, wurde für das Gebiet nördlich der Dachauer Straße in Erding ein Bebauungsplan aufgestellt.
Im Geltungsbereich vorgesehen war die Errichtung einer Großbäckerei. Ein auf der Fläche vorhandener Reiterhof wurde aufgegeben. Als neue Nutzung wurde in Anlehnung an die Nutzungsverteilung des nördlich angrenzenden Bebauungsplans Nr. 135 ein Industriegebiet festgesetzt. Parallel zum Bebauungsplan wurde eine Änderung des Flächennutzungsplans durchgeführt.

Mit der dritten Änderung des Bebauungsplanes wurde ein seit 1976 bestehender Bebauungsplan auf neue Gegebenheiten hin aktualisiert. In einem ersten Schritt wurden die Nachverdichtungsmöglichkeiten im Geltungsbereich überprüft. Darauf aufbauend wurde vom Gemeinderat über die möglichen Inhalte der Bebauungsplanänderung entschieden.
Die Bebauungsplanänderung stellt einen eigenständigen Bebauungsplan dar, der die vorhergehenden Bebauungsplaninhalte aufnimmt und an die heutigen Anforderungen anpasst.

Für eine Fläche südlich des Logistikparks Römerweg in der Gemeinde Neufahrn wurde eine Konzeptstudie für ein ökologisches und nachhaltiges Gewerbegebiet zur Unterbringung von Forschungs- und Entwicklungseinrichtungen und zuarbeitenden Betrieben sowie Versorgungseinrichtungen entwickelt.
Ziele für den ONE High Tech Green Campus waren eine attraktive Aufenthaltsqualität für Beschäftigte und Besucher, eine ausgeprägte Grünflächenausstattung, sparsamer Umgang mit Ressourcen und eine innovative und vielfältige Verkehrsinfrastruktur.
→ Pressemitteilung der Gemeinde Neufahrn

Die Fortschreibung des Flächennutzungsplans (FNP) mit integrierten Landschaftsplan der Stadt Erding wurde erforderlich, um die Siedlungsentwicklung und eine Vielzahl von raumbedeutsamen Planungen im Stadtgebiet in den Darstellungen des FNP nachzuführen bzw. neue stadträumliche Ziele aufnehmen zu können. Die bisherigen FNP-Änderungen wurden integriert und der Zielhorizont mit den zugehörigen Prognosen auf 2030 aktualisiert.

Die Umnutzung des ehemaligen Luftschiffwerftareals zu einem Freizeitparkgelände machte zahlreiche Planungsverfahren erforderlich. Über das Raumordnungsverfahren wurden die Auswirkungen der geplanten Freizeitparknutzung auf die Umgebung untersucht.
Die aus der Vornutzung vorhandenen Bebauungspläne wurden geändert und weitere Bebauungspläne für Feriensiedlungen, Campingplätze etc. entwickelt. Insgesamt wurde das gesamte Areal überplant.

Mit der Änderung des Bebauungsplanes Nr. 168 V wird ein neues Konzept für die Fläche umgesetzt. Auf Grundlage des neuen Konzepts sind Änderungen in Gebietsart und Nutzungen sowie in den Gebäudekubaturen, der Verkehrsführung und in der Freiflächengestaltung verbunden. Der Bebauungsplan ist Teil des Gewerbegebiets Erding West und ergänzt das Gewerbe- / Einzelhandelsangebot der umliegenden Nachbarschaft.
Bei der Bebauungsplanänderung handelt es sich um einen eigenständigen qualifizierten Bebauungsplan, der die vorherigen Bebauungsplanstände ersetzt.

Der Kohlenhof, eine ehemalige Bahnfläche (Güterbahnhof), zwischen der südlich angrenzenden Bahnlinie und der nördlich begrenzenden Kohlenhofstraße im Stadtgebiet Nürnbergs südwestlich der Altstadt gelegen, wurde städtebaulich neu entwickelt.
Für das Gebiet haben wir erstmalig 2006 eine Rahmenplanung in Abstimmung mit der Stadt Nürnberg erstellt. Dieser Rahmenplan wurde innerhalb der letzten Jahre immer wieder überarbeitet. Durch das Plangebiet führt eine unmittelbare Anbindung an den Frankenschnellweg.
→ Projektseite von aurelis

Die Neuentwicklung des Bebauungsplangebietes Nr. 223 „Südlicher Thermengarten“ wurde in zwei Teilabschnitten umgesetzt. Als Leitlinie der städtebaulichen Entwicklung des gesamten Plangebietes wurde vorab ein Masterplan konzipiert. Die beiden Teilbebauungspläne wurden daraus entwickelt und setzen die städtebauliche Konfiguration dieser Gesamtkonzeption um. Ziel war die Unterbringung unterschiedlicher Wohnformen im Bebauungsplangebiet.

Der Bebauungsplan Nr. 88 der Stadt Erding wurde für ein Wohnquartier mit den dazugehörigen Freiraumnutzungen sowie den erforderlichen Infrastruktureinrichtungen auf dem Gelände des alten Poststadl an der Dorfener Straße in Erding aufgestellt. Grundlage für den Bebauungsplan bildete der städtebauliche und landschaftsplanerische Entwurf der Büros Walbrunn Architekten und Lex Kerfers Landschaftsarchitekten.

Im Auftrag der Landeshauptstadt München haben wir den Bebauungsplan mit Grünordnung Nr. 1998b für die Nachnutzung einer Teilfläche eines ehemaligen Ausbesserungswerks der DB als neues Wohnquartier mit den dazugehörigen Freiraumnutzungen sowie den erforderlichen Infrastruktureinrichtungen erstellt. Basis bildete der städtebauliche und landschaftsplanerische Entwurf der Büros Marcel Meili, Markus Peter Architekten und Bauchplan.

Durch den S-Bahn-Ringschluss zum Flughafen München erhält die Stadt Erding einen neuen Bahnhof mit S- und Regionalbahnhalt. Auf der dafür vorgesehenen Teilfläche des Fliegerhorstes Erding wurde die Planung der DB in ein städtebauliches Gesamtkonzept als Grundlage für die Planfeststellung der Bahnanlagen eingebunden. Die unterirdische Führung der S-Bahn im Stadtgebiet eröffnet neue Spielräume für die Entwicklung.

Der Ortsteil Langengeisling soll östlich der Alten Römerstraße durch die Ausbildung eines Ortsrands neu definiert werden. Die Stadt Erding hat dazu einen städtebaulichen Wettbewerb ausgeschrieben.
Die mit dem ersten Preis ausgezeichnete Arbeit schlägt die Ausbildung des historischen Verlaufs der alten Römerstraße als archäologisches Band vor. In Ost-West-Richtung werden drei wichtige Fuß- und Radwegeverbindungen hergestellt. Durch das Aufgreifen und die Weiterführung dörflicher Hofstrukturen formt sich ein klarer Ortsrand.

Die ehemalige Flak-Kaserne, das heutige Kobelcenter Süd, ist Teil des Stadtteils Augsburg-Kriegshaber. Im westlichen Teil sollen Gewerbe, Wohnen und Dienstleistungen entstehen. Um dem bestehenden Gewerbe und Wohngebiet nach Osten einen klaren Abschluss zu geben, wird eine Stadtkante entlang der angrenzenden, vierspurigen Hauptdurchgangsstraße installiert.
Ein großzügiger Versatz der geschlossenen Bebauung erzeugt eine Platzsituation, der es gelingt, an alle wichtigen Punkte innerhalb des Kontextes anzuschließen. An der Stadtkante wird die regelmäßige Baustruktur von Grüneinschnitten unterbrochen.
Team Stadtplanung























